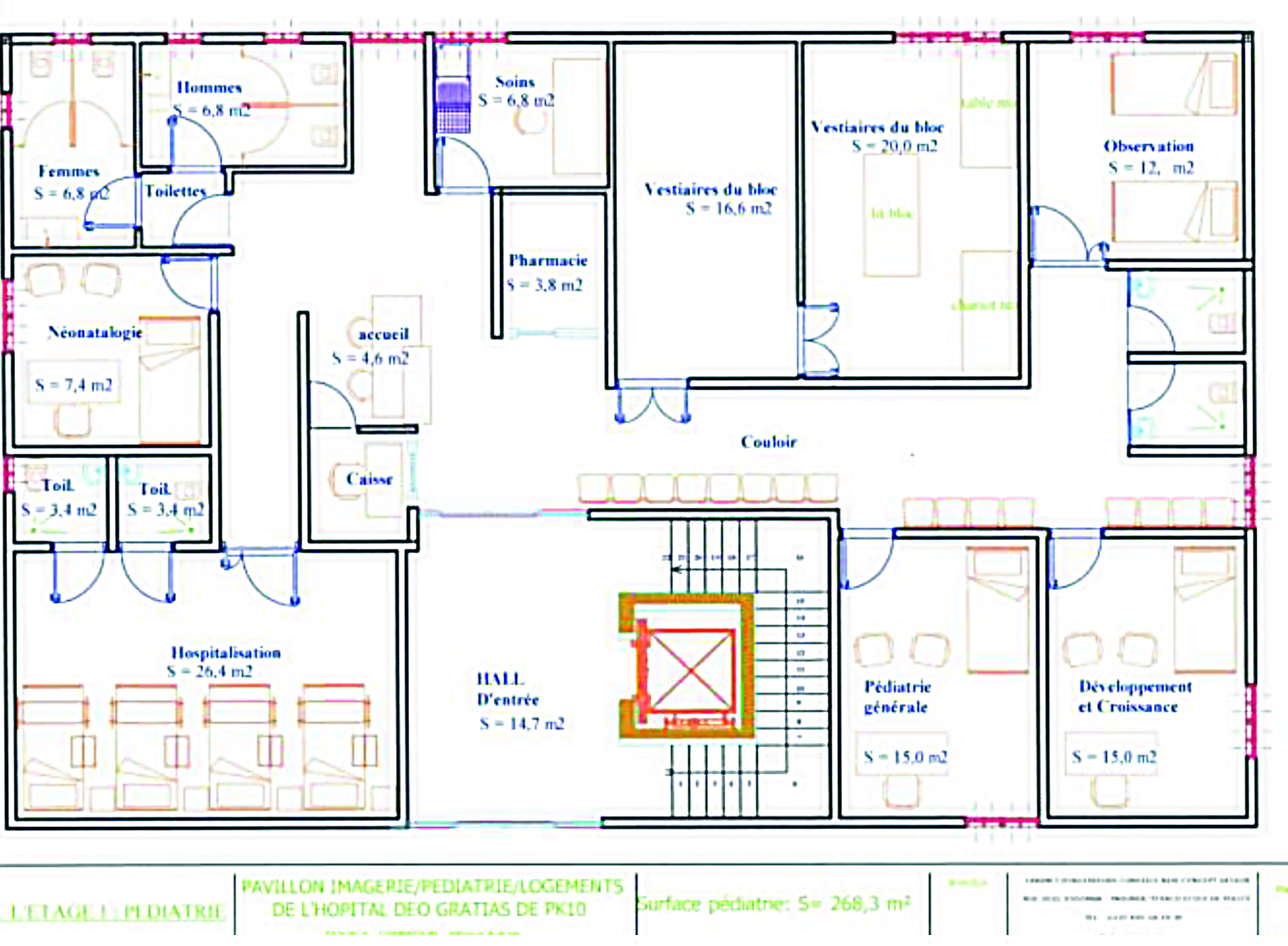
DOUALA : Extension de l’hôpital PK10,
Pôle Mère Enfant
DOUALA : Extension de l’hôpital PK10, Pôle Mère Enfant
L’accroissement du nombre de malades oblige à l’extension de cet hôpital. Les espaces spécifiques seront mieux adaptés et les conditions de travail y seront améliorées. Les chambres seront plus nombreuses et plus confortables.
Un service complet d’imagerie qui manque beaucoup en l’état y sera installé.
Les travaux ont débuté fin 2025 et se termineront en 2028. Voici les plans du futur bâtiment et quelques photos prises en février et en mars derniers.
